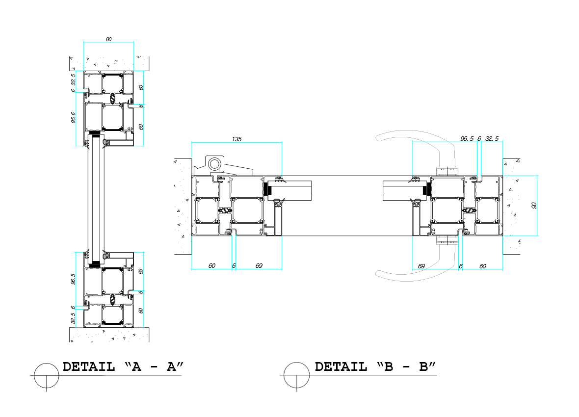
시스템 도어 (90mm)F Z - S D 7 0 A
시스템 도어 (90mm)
주거 및 상업용 시설의 현관문으로 적용하며, 폴리아미드 단열재를 적용하여 우수한 단열성과 기밀성을 자랑합니다 3개의 락장치 적용이 가능한 제품으로 기존 70mm 제품의 업그레이드 버전으로 볼수 있으며 단열 및 기밀성 또한 한층더 우수해진 제품
제품 상세설명
| 용도 | 실내용, 실외용 가능 | 프레임재질 | 알루미늄 프로파일 |
| 설치최대넓이 | 1000mm | 도장 | 불소수지도장 |
| 설치최대높이 | 3000mm | 기본색상 | 블랙, 화이트, 그외 지정색 가능 |
| 판넬최대수 | 좌측 1장 우측 1장 양개가능 | 구동장치 | 90도 경첩 방식 |
| 유리규격 | 22mm, 24mm, 28mm, 32mm | 잠금장치 | 측면 키장치 |
| 유리종류 | 강화유리, 투명유리, 복층유리, 3중유리 등 | 잠금방법 | 키잠금방식 |
제품 상세도면








